Skip to main content
Regina Thompson, Sales Associate
SOLD
$256,000
Date 10/28/2025

26917 Oxford Park Lane
Olmsted Twp, OH 44138

Single Family
Residence
3
Beds
1
Baths
1,522
Sqft
0.3444
Lot Size
Courtesy: Russell Real Estate Services, Jodi@StevensRealEstateTeam.com, 440-221-6437
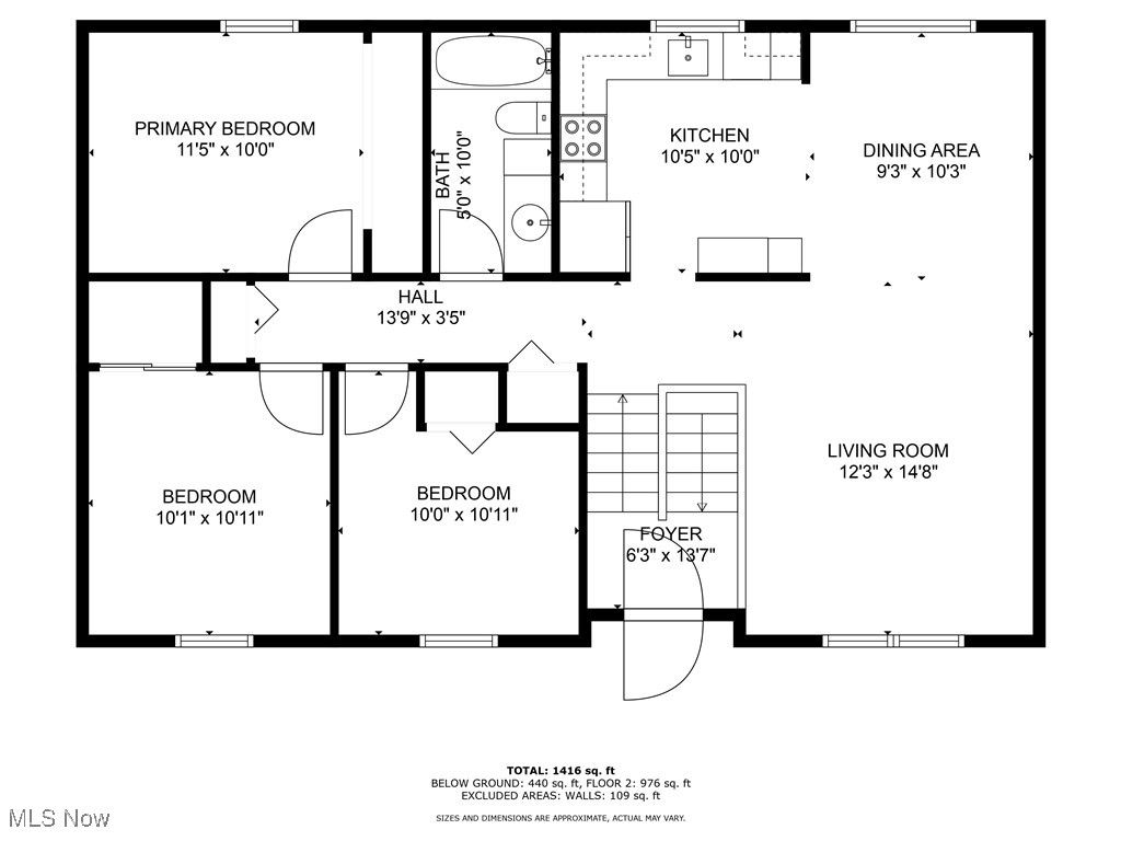
Captivating curb appeal welcomes you to this meticulously maintained home in the sought after community of Olmsted Township! Lush landscaping leads you to the front door and makes you feel at home the moment you step inside. The main level features an open concept living, dining and kitchen area. The living room is filled with light from the large front window, and the super plush carpet will make you want to kick off your shoes and play with the kids on the floor. Enjoy family meals around the dining table with room for 6 or more. The kitchen features granite counter tops, super chic black ceramic subway tile backsplash and stainless appliances. Luxury vinyl wood plank floors run throughout the kitchen and dining area for easy clean up. Down the hall on the main level is an updated full bath with a Corian sink, marble surround tub and shower, and ceramic tile flooring. The primary bedroom can fit a king bed and has a full wall of closet space. The two additional bedrooms are roomy enough for a queen bed or make the perfect nursery. All three bedrooms have brand new carpet. Huge lower-level family room is the place to be for the big game or family gathering and features a beamed ceiling, brick walls and luxury vinyl wood planking. The laundry room includes the washer and dryer, sink, and storage cabinets. Don't miss the cute mud room area tucked under the stairs right off the garage for a great landing place for coats and shoes. The two-car garage is extra deep and wide for storage space and workshop areas. A French door off the family room in the lower level invites you onto the 12x10 paver patio that is perfect for relaxing, dining and grilling out. Spacious grassy backyard with plenty of room for games including the family Thanksgiving football game, gardening and more. This home is immaculate and just waiting for you to move in!
5156486
Single Family, 2 Story
3
Cuyahoga
1 Full
1976
0.3444 Acres
Public Water
2
Brick, Vinyl Siding
Public Sewer
Loading...
Data Provided by Onboard
Walk Score measures the walkability of any address, Transit Score measures access to public transit on a scale of 1-100.

Walk Score

Transit Score

Estimated Payment:

Principle & Interest
Taxes
Insurance
%
%
Courtesy: Russell Real Estate Services, Jodi@StevensRealEstateTeam.com, 440-221-6437
The data relating to real estate for sale on this website comes in part from the Internet Data Exchange program of NEOHREX. Real estate listings held by brokerage firms other than the owner of this site are marked with the Internet Data Exchange logo and detailed information about them includes the name of the listing broker(s). IDX information is provided exclusively for consumers' personal, non-commercial use and may not be used for any purpose other than to identify prospective properties consumers may be interested in purchasing. Information deemed reliable but not guaranteed. Copyright© 2026 NEOHREX. All rights reserved.
This content last refreshed on 3/12/2026 5:46 AM CST. Some properties which appear for sale on this web site may subsequently have sold or may no longer be available.
Information is deemed reliable but is not guaranteed.